固定比例式減壓閥 | YB43X
固定比例式減壓閥 產品說明
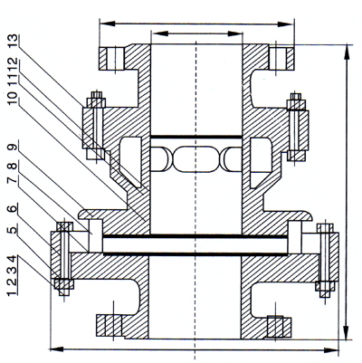
YB43X固定比例式減壓閥是一種等比例減低流經介質壓力的調節閥。通常用于高層建筑、泵站及消防系統,既能減動壓又能減靜壓,減壓比例精確。該閥結構簡單,選材優質,價格低廉,性能可靠。參考比例有:2:1、3:1、4:1、3:2、5:2等,如客戶有特殊要求,可在訂單中說明。比例式減壓閥主要由閥體、進口法蘭、活塞、大缸套、小缸套、出口法蘭及O型圈、密封墊等零件組成。比例式減壓閥是利用閥內浮動活塞兩端不同的截面積構成了閥前與閥后的壓力差,改變閥后的壓力達到減壓目的。比例式減壓閥結構獨特、性能優越、流量大、開關平穩、無噪聲、減壓比例穩定、即“減動壓”又“減靜壓”,并且有減少乃至消除“水錘”現象對管件與供水器具的破壞,消除不必要的振動,節約水源保護管網的作用。
固定比例式減壓閥 性能指標
| 適用介質 | 水、氣體 | |||
|---|---|---|---|---|
| 適用溫度 | ≤90℃ | |||
| 壓力誤差 | ≤8% | |||
| 小開啟壓力 | 2∶1 | 0.2MPa | ||
| 3∶1 | 0.3MPa | |||
| 連接形式 | 法蘭、內螺紋 | |||
| 主要零件材料 | 閥體 | 錫青銅 | 不銹鋼 | 鑄鐵 |
| 內件 | 錫青銅 | 不銹鋼 | 錫青銅或不銹鋼 | |
固定比例式減壓閥 結構尺寸圖
固定比例式減壓閥 連接尺寸
| 型號 | 公稱壓力 | 公稱通徑DN(mm) | L |
|---|---|---|---|
YB43X-10T (B型) |
1.0 | 50 | 85 |
| 65 | 102 | ||
| 80 | 122 | ||
| 100 | 140 | ||
| 125 | 160 | ||
| 150 | 178 | ||
| 200 | 230 | ||
YB43X-16T (B型) |
1.6 | 50 | 85 |
| 65 | 102 | ||
| 80 | 122 | ||
| 100 | 140 | ||
| 125 | 160 | ||
| 150 | 178 | ||
| 200 | 230 |
| 公稱通徑DN(mm) | 尺寸(mm) | ||
|---|---|---|---|
| C | L | D | |
| 15 | 1/2" | 80 | 50 |
| 20 | 3/4" | 80 | 50 |
| 25 | 1" | 90 | 54 |
| 32 | 1 1/4" | 100 | 60 |
| 40 | 1 1/2" | 110 | 68 |
| 50 | 2" | 120 | 80 |
更多>> 產品列表
- · 水用減壓閥 | Y42X
- · 氣體減壓閥 | YK43X/F
- · 蒸汽減壓閥 | Y43H
- · 高靈敏度蒸氣減壓閥 | YG43H
- · 超大膜片高靈敏度減壓閥 | YD43H
- · 電動減溫減壓閥 | Y945H
- · 內螺紋連接蒸汽減壓閥 | YG13H
- · 不銹鋼支管減壓閥 | YZ11X
- · 黃銅支管減壓閥 | YZ11X
- · 直接作用式波紋管減壓閥 | Y44H/Y
- · 杠桿式減壓閥 | Y45H/Y
- · 加大薄膜型高靈敏度減壓閥 | YT11H
- · 高靈敏度大流量蒸汽減壓閥 | YGa43H/Y
- · 直接作用可調減壓閥 | 200P
- · DP17斯派莎克減壓閥 | DP17
- · Y416X減壓穩壓閥 | Y416X
- · 固定比例式減壓閥 | YB43X
更多>> 閥門圖片列表
更多>> 其他閥門
