金屬閥門結構長度GB12221-2005
金屬閥門結構長度GB12221-2005 PDF 文件下載
1范圍
本標準規定了法蘭連接閥門的結構長度、焊接端閥門的結構長度、對夾連接閥門的結構長度、內螺
紋連接閥門結構長度、外螺紋連接閥門結構長度,及其結構尺寸的極限偏差。
本標準適用于公稱壓力PN≤42.O MPa,公稱通徑DN3 mm~DN4 000 mm的閘閥、截止閥、球閥、 蝶閥、旋塞閥、隔膜閥、止回閥等的結構長度。
2規范性引用文件
下列文件中的條款通過本標準的引用而成為本標準的條款。凡是注日期的引用文件,其隨后所有
的修改單(不包括勘誤的內容)或修訂版均不適用于本標準,然而,鼓勵根據本標準達成協議的各方研究
是否可使用這些文件的新版本。
GB/T 1047管道元件DN(公稱尺寸)的定義和選用(GB/T 1047-2005,IS0 6708:1995,M【)D)
GB,/T 1048管道元件PN(公稱壓力)的定義和選用(GB,/T 1048-2005,IS0 7268:1996.MOD)
3術語
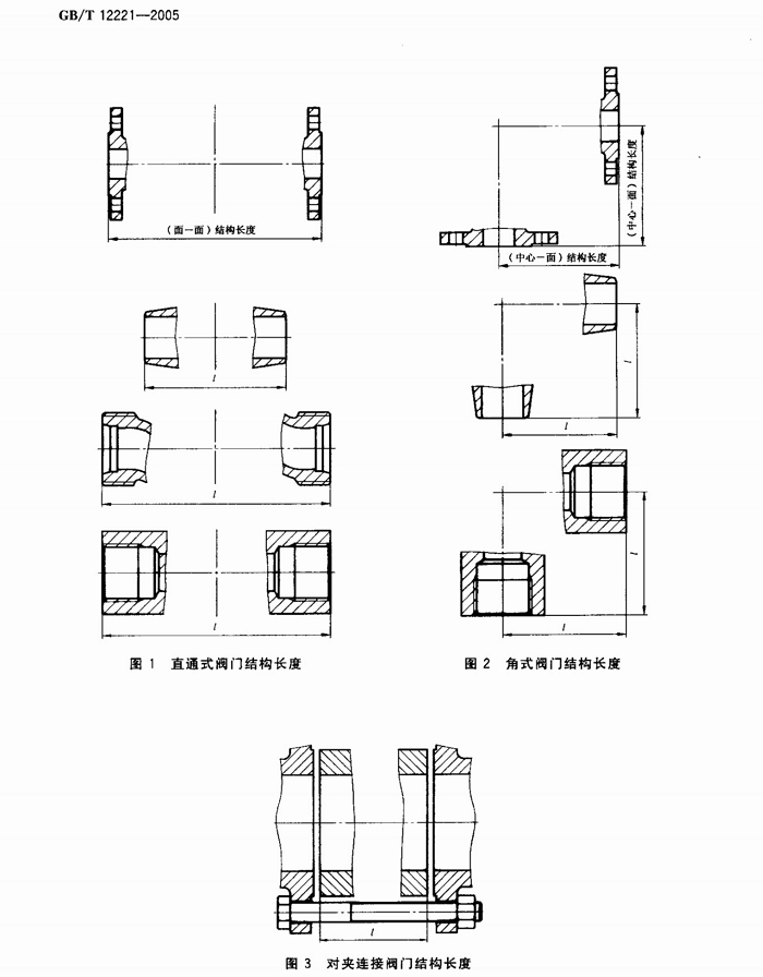
3.1
直通式閥門結構長度 through way type of valves face to face,end to end,center to face and center
to end dimensions
在閥體遁道終端兩個垂直于閥門軸線平面之間的距離。
3.2
角式閥門結構長度angle type of valves face to face,end to end,center to face and center to end di-
mensions
在閥體通道某一終端垂直于軸線的平面與閥體另一終端軸線之間的距離。
3.3
對夾式閥門 wafer type valves
靠管道法蘭夾持固定密封結構的閥門。其結構長度指閥體通道終端兩個與管道法蘭接觸面之間的
距離。
4結構長度尺寸與極限偏差
4.1 公稱通徑數值按GB,/T 1047的規定;公稱壓力數值按GB/T 1048的規定。
4.2直通式閥門結構長度如圖1所示;角式閥門結構長度如圖2所示;對夾連接閥門結構長度如圖3
所示。
4.3結構長度尺寸
4.3.1法蘭連接閥門結構長度基本系列見表1。
